山東鄆城午夜视频在线观看免费重工有限公司
聯係人:午夜视频在线观看免费重工
手機:18369030888
手機:18754011666
網址:www.tnxgy.com
地址:山東鄆城縣工業園區
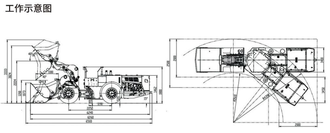
WJ-1/WJ-2內燃鏟運機
發布時間:2025-06-15 09:11:43

WJ-1/WJ-2內燃鏟運機功能及特點:
鏟運機是一種用於鏟土、運土的工程機械,在土木建築,道路建設、水利工程、礦山開采等眾多領域發揮著重要作用,具體一下特點:
1、快速作業:集裝載、運輸、卸載於一體,可自行完成鏟裝、運輸及卸料作業,作業效率高,能在短時間內完成大量物料的轉移,減少施工時間和人力成本。
2、機動性強:機身設計緊湊,轉彎半徑小,能夠在狹窄的場地和複雜路況下靈活行駛、轉向,輕鬆穿梭於工地,適應各種作業環境,如建築工地、礦山、港口等。
3、多種鏟鬥選擇:配備不同類型和容量的鏟鬥,以滿足各類物料的鏟裝需求,像鬆散的砂土、礫石,以及較硬的土石方等,提升設備的通用性和實用性。
4、操作簡便:采用人性化的操作係統,操作手柄布局合理,易於掌握,駕駛員能輕鬆控製鏟鬥的升降、翻轉及車輛的行駛,降低勞動強度,減少操作失誤。
5、良好的穩定性:擁有較低的重心設計和穩固的底盤結構,在鏟裝和運輸過程中,即使滿載行駛在不平整的路麵上,也能保持較好的穩定性,確保作業安全可靠,降低傾翻風險。
上一篇:已經是第一條了
相關產品: